Bendigopropertysales

powered by Open2view.com
SOLD

Melbourne
4
2
N/A
N/Asqm
755sqm
Melbourne
proudly marketed by
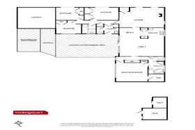
'An Attractive Place to Start or Invest' $440,000 - $490,000 Here's an attractive BV family home that's sure to appeal to First Homebuyers, Investors and Young Families. Firstly, it offers you a spacious floorplan to make family living easy. Secondly, it's set on 755 sqm. (approx.), in a prime location, near local amenities. This wonderful home is as 'neat as a pin' and there's scope for you to further modernise it over time if you wish. Landscaped gardens welcome you and the interior features two generous living areas. On cosy evenings you can kick back in front of the wood fire heater in the carpeted lounge room. The open plan kitchen is well-appointed and has dishwasher, quality cooking appliances and easy-care slate floors. A dining/meals area and a spacious family room gives you space to relax with the family. Discover the ease of 4 good-sized bedrooms (all robed), an updated central bathroom and separate toilet. Parents can enjoy the bonus of a huge master bedroom, which is privately tucked away on its own. It boasts full spa bath ensuite and WIR. Outdoors there's a large undercover area with mains gas BBQ for 'all-seasons' entertaining. Children can play in the security of the back garden, which has room for play equipment. Appointments: GDH, A/C, 2 x storage sheds, caravan/trailer parking space and double carport. All in a fantastic leafy location, close to EastLink, Bayswater Nth Primary, bike track, parks and shops. It's easy to live in or rent out now - don't miss this attractive opportunity!
Question
Upload by Sunny Sween (Area)
Melbourne East, North and Bass Coast
This property was photographed by
Sunny Sween (Area)
0437318354